Thiết Kế Nội Thất Chung Cư Iris Gaden
Dự án:
Thiết Kế Nội Thất Chung Cư Iris Gaden
Địa điểm:
30 Trần Hữu Dực - Nam Từ Liêm - Hà Nội
Thiết kế
Trường Yến Architecture
Căn hộ Iris Garden là một trong những công trình tiêu biểu được Nội thất Trường Yên thiết kế và thi công trọn gói, mang phong cách hiện đại với điểm nhấn tinh tế và cá tính. Không gian được xử lý khéo léo, hướng đến sự tiện nghi, thoáng sáng nhưng vẫn đảm bảo tính thẩm mỹ cao và thể hiện gu thẩm mỹ riêng của gia chủ.
Toàn bộ nội thất sử dụng gỗ MDF lõi xanh chống ẩm An Cường, kết hợp bề mặt Acrylic bóng gương sang trọng, tạo cảm giác hiện đại và dễ lau chùi. Hệ phụ kiện sử dụng đồng bộ Hafele cao cấp, riêng khu vực bếp được đầu tư hệ ray – bản lề – kệ tủ thông minh đến từ thương hiệu Garis, giúp tăng tiện ích sử dụng hàng ngày.
Điểm nhấn ấn tượng nhất của căn hộ là phòng khách với trần gương phản chiếu sang trọng, kết hợp cùng mảng ốp tường vân đá lớn – tạo hiệu ứng chiều sâu và mang lại cảm giác đẳng cấp cho toàn bộ không gian sinh hoạt chung. Cách bố trí ánh sáng và lựa chọn màu sắc cũng được cân nhắc kỹ, giúp không gian luôn sáng, ấm và hài hòa.
Công trình hoàn thiện đúng tiến độ với chất lượng đồng đều, là một ví dụ rõ ràng cho tiêu chí mà Trường Yên luôn theo đuổi: tối ưu công năng – tinh gọn chi phí – nâng tầm không gian sống.
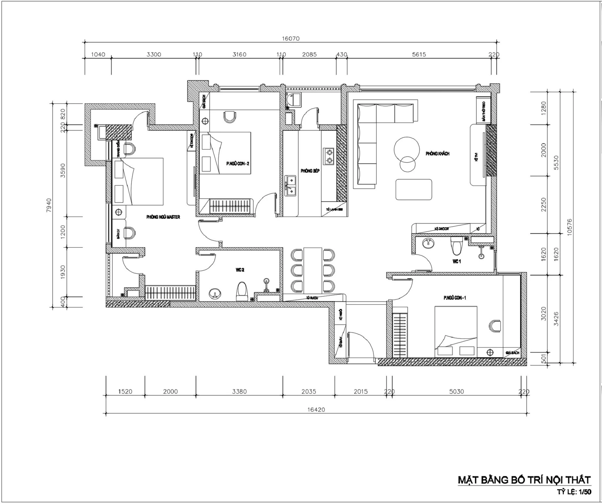
1: MẶT BẰNG NỘI THẤT.

2: THIẾT KẾ NỘI THẤT PHÒNG KHÁCH BẾP









2: THIẾT KẾ NỘI THẤT PHÒNG NGỦ MASTER



2: THIẾT KẾ NỘI THẤT PHÒNG NGỦ CON TRAI



2: THIẾT KẾ NỘI THẤT PHÒNG NGỦ CON GÁI


